Presenta:

Pocos lo saben: cuáles son las 12 secciones de la Ciudad de Mendoza, dónde empiezan y termina cada una

La Ciudad de Mendoza está dividida en 12 secciones políticas y muchas veces no resulta sencillo identificar dónde empieza o termina cada una. Con el mapa oficial del municipio, es posible saber entre qué calles se encuentra cada sector de la capital.

La Ciudad de Mendoza está dividida en 12 secciones políticas y cuenta con mapas oficiales para identificar entre qué calles se ubica cada una.

La Ciudad de Mendoza está dividida en 12 secciones políticas y cuenta con mapas oficiales para identificar entre qué calles se ubica cada una.

Rodrigo D'Angelo / MDZ

Muchas veces, para quienes viven, trabajan o hacen trámites en la Ciudad de Mendoza, no es fácil saber en qué sección están. El problema aparece seguido cuando una dirección figura con el nombre de una seccional, pero la persona no tiene claro cómo se distribuyen esos límites dentro del mapa urbano. Por eso, el Geoportal Ciudadano del municipio ofrece mapas de cada una de las áreas para consultar la división oficial.

La Ciudad de Mendoza es la capital de la provincia y tiene algo más de 127 mil habitantes, según el último censo. Dentro de ese territorio, el municipio está organizado en 12 secciones. Aunque para muchas personas esos nombres son habituales, no siempre resulta sencillo identificar en qué sector queda una calle o hasta dónde llega cada zona. Y si bien hoy internet permite saber en pocos pasos dónde está cada sección, tampoco es un dato tan difícil de memorizar, una tarea que incluso puede ayudar al cerebro más de lo que uno imagina.

Al mirar el mapa que ofrece la Ciudad de Mendoza, la capital puede dividirse de manera informal en dos grandes zonas: de Boulogne Sur Mer hacia el este y de Boulogne Sur Mer hacia el oeste. Hacia el este se ubican de la 1ra a la 6ta sección. Del otro lado aparecen de la 7ma a la 12va.

Departamentos_Ciudad_de_Mendoza
El mapa de la Ciudad de Mendoza y sus secciones.

El mapa de la Ciudad de Mendoza y sus secciones.

Cómo reconocer cada sección de la Ciudad de Mendoza

En la parte más céntrica de la Ciudad de Mendoza, la 1ra Sección se ubica entre Belgrano y avenida San Martín, con Joaquín V. González y Gutiérrez como referencias clave para entender sus bordes. A su lado aparece la 3ra Sección, del lado este de avenida San Martín y por debajo de Alberdi. Más hacia el sur y el este se encuentra la 2da Sección, en el área delimitada por Gutiérrez, Vicente Zapata y Costanera.

La 4ta Sección de la Ciudad de Mendoza se divide en dos sectores, Este y Oeste. En esa parte del mapa aparecen calles como Pellegrini, Houssay, Alberdi y Coronel Díaz, que sirven para ubicar una de las zonas más amplias de la capital. Más hacia el oeste del centro se reconocen la 5ta y la 6ta Sección. La 5ta queda entre Boulogne Sur Mer, Belgrano y Mariano Moreno, mientras que la 6ta Sección Residencial Norte se extiende por encima de Joaquín V. González y hacia el oeste de Belgrano.

Del otro lado de Boulogne Sur Mer, la Ciudad de Mendoza cambia de fisonomía y también de secciones. La 7ma Sección se apoya en referencias como Olascoaga, Lencinas, Flores Sur y Santa Rita. Un poco más arriba se ubica la 8va Sección, relacionada con el Zanjón de los Ciruelos, Houssay y Barrio San Martín. En ese mismo esquema aparecen también la Sección Residencial Los Cerros, el Parque General San Martín, Barrio La Favorita y Piedemonte, que completan la división territorial de la capital.

Para saber con mayor precisión en qué parte de la Ciudad de Mendoza está una dirección, lo más práctico es comparar el nombre de la calle con el mapa oficial del municipio. Avenidas y calles típicas mendocinas como San Martín, Belgrano, Boulogne Sur Mer, Costanera, Alberdi, Gutiérrez o Joaquín V. González permiten hacer una primera ubicación bastante rápida. Después, con el plano de cada seccional, se puede confirmar con más detalle dónde empieza una sección y dónde termina la otra.

Una por una, el mapa de cada sección de la Ciudad de Mendoza

La primera sección de la Ciudad de Mendoza

Sección 1

La segunda sección de la Ciudad de Mendoza

Sección 2

La Tercera sección de la Ciudad de Mendoza

Sección 3

La Cuarta sección de la Ciudad de Mendoza

Sección 4 este
Sección 4 oeste

La Quinta sección de la Ciudad de Mendoza

Sección 5

La Sexta sección de la Ciudad de Mendoza

Sección 6

La Séptima sección de la Ciudad de Mendoza

Sección 7

La Octava sección de la Ciudad de Mendoza

Sección 8

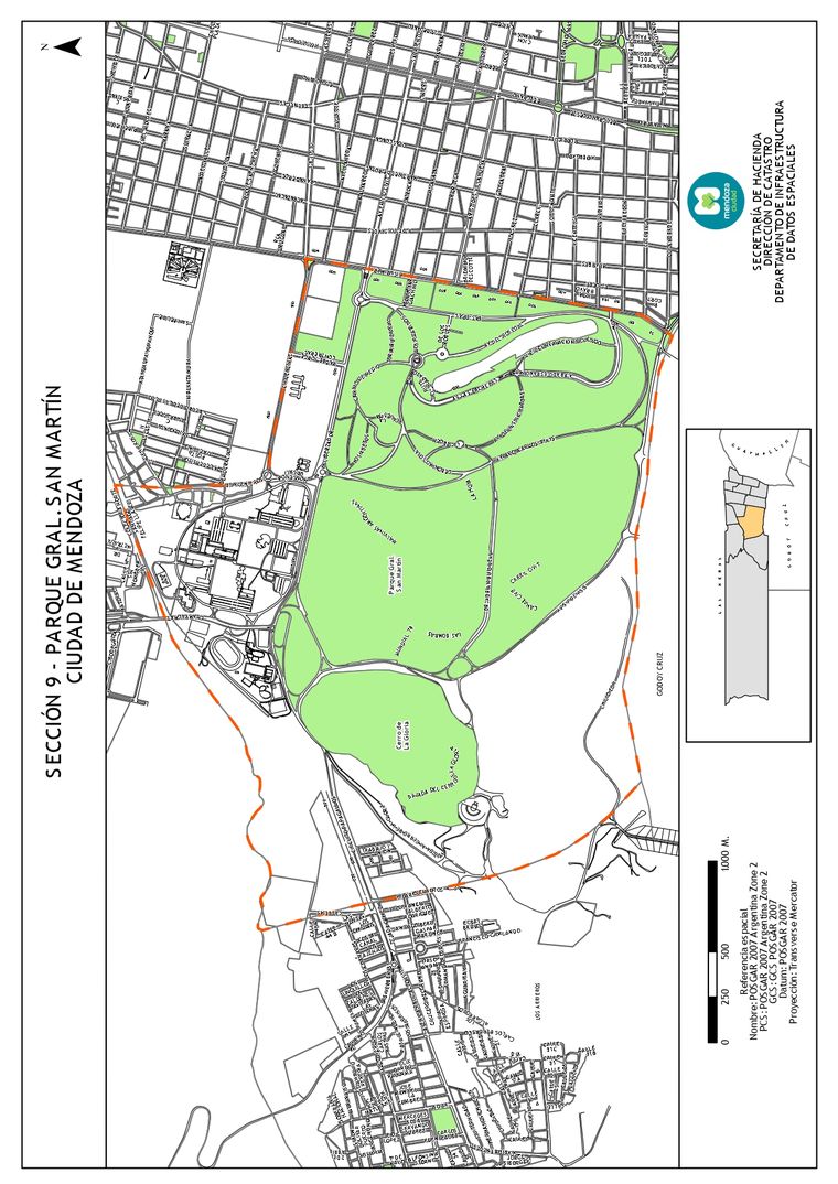
La Novena seccción de la Ciudad de Mendoza

Sección 9

La Décima sección de la Ciudad de Mendoza

Sección 10

La Onceava sección de la Ciudad de Mendoza

Sección 11

La Doceava sección de la Ciudad de Mendoza

Sección 12