Así serán las "casitas electorales" con las que Jaque busca sumar votos para octubre
Casas pensadas para que una familia tipo de cuatro personas viva en el espacio que representa un departamento chico de dos ambientes como cualquiera de los que hay en el centro de Mendoza, habitaciones de tres metros por tres metros, un comedor-cocina-living-estar de cuatro metros por cuatro metros, pisos de cemento, un costo total de más de $100.000, escasas terminaciones y las condiciones mínimas de edificación permitidas en la provincia para viviendas sociales de este tipo.
![]() |
El gobernador estará presente hoy en Buenos Aires (cortó sus vacaciones en la Costa Atlántica para ello) junto a ocho mandatarios provinciales más que también serán beneficiarios por la billetera K que se abrirá, en este caso, para construir casas en el país por un total de $4.000 millones provenientes de la Anses. La importancia que este gobierno le da al anuncio, está dada en la multitud de funci0narios y dirigentes mendocinos que asistirán: serán alrededor de 170.
Mendoza, en los próximos 3 años, recibirá un cupo de $462 millones que estarán depositados en un fondo fiduciario del Banco Nación y que llegarán a través de un mecanismo no muy difundido por la administración local a la hora de hacer viento con este mega plan de obras públicas: la provincia deberá devolver peso por peso, en un lapso de 15 años, toda la plata que Cristina le prometerá hoy.
Este dato fue ratificado por el titular del IPV, Carmelo Simó, quien confirmó a MDZ que el “Plan Plurianual de Viviendas es un préstamo de Anses a devolver en quince años y a una tasa del 9%”.
Esta referencia es casi nueva. Lo que no lo es, es cómo plantea la Nación su relación con la provincia. Si Mendoza no cumple algún mes con el pago de la cuota del préstamo, este le será descontado automáticamente de los fondos que desde Buenos Aires se giran a través del Fondo Nacional de Viviendas (FONAVI).
Ahora: si la Nación no cumple con el envío de fondos prometidos, sólo le queda a la provincia que un funcionario del IPV o el propio gobernador se instale en la Casa Rosada a rogar para que le paguen.
Esta historia no es nueva. Entre 2003 y 2009, las distintas administraciones kirchneristas han prometido hacer en Mendoza 15.500 viviendas.
De ellas no se han hecho ni la mitad hasta el momento.
El Plan Federal 1 prometía 4.500 viviendas en toda la provincia y que el IPV asegura que se concretó. Pero luego de que dos gobiernos tuvieran que reclamar sistemáticamente los fondos en la Capital Federal.
El Plan Federal 2, fue tan ambiciosos como efímero. Prometía 11.000 viviendas de las cuáles se han ejecutado o licitado menos de 4.000 y otras 1.800 serán ahora “reconvertidas” en el plan que se anunciará Cristina y que aplaudirá Jaque.
Tantas casas anunciadas, cubren apenas el déficit habitacional de Mendoza que es de unas 30.000 viviendas nuevas y de unas 70.000 que necesitan refacciones o arreglos.
El “proyectito” del IPV
Simó tiene desde principios de enero sobre su escritorio el borrador casi definitivo de cómo se estructurará el plan, cuánto costará cada casa y cómo serán.
En líneas generales, el gobierno de Mendoza hizo un cálculo simple. Con la plata que hay disponible, había que construir la mayor cantidad de viviendas posibles. Y para ello se “optimizaron” algunas características como hacerlas con techos de loza y sin terminaciones tales como pisos de cerámicos del living y las habitaciones.
“Con el proyectito que hicimos, hemos tratado de hacer algo estéticamente agradable y que se lo más económicamente posible”, explicó Simó.
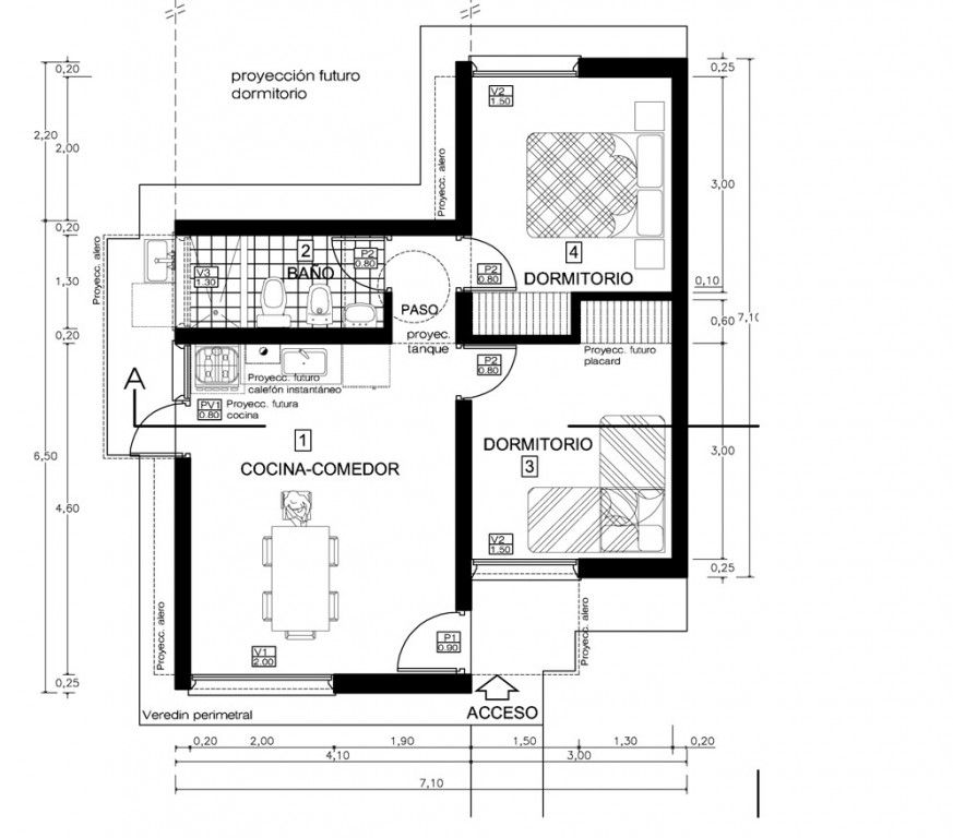
A juzgar por lo que está proyectado, los dos objetivos se han logrado. Salvo que cada vivienda tendrá unas dimensiones de poco menos de 54 metros cuadrados, que apenas si alcanzan a cumplir el mínimo establecido por el Código de Edificación de la provincia.
Estas dimensiones son algo similar a lo que se construye en cualquier edifico de Mendoza para que lo habite una sola persona o un matrimonio joven y sin hijos.
El gobierno defiende, sin embargo, su proyecto con un argumento: dice que estas casas son las que habitualmente se hacen a través de planes de este tipo (como las 4.500 que se hicieron en el Plan Federal 1) y que son aptas para una familia de cuatro personas.
Además, sostienen en el IPV, el proyecto incluye la posibilidad de dos ampliaciones (una en el frente y otra en el fondo). Así se ve el plano.
![]() |
Pero, según admitieron desde el mismo Instituto de la Vivienda, el Plan Federal 2 (que fue fallido por cierto porque la Nación financió sólo una parte de lo prometido) contemplaba casas de más de 60 metros cuadrados.
Todos puestos a hacer casitas
El plan que se presentará esta tarde será utilizado por el gobierno de Celso Jaque tanto para la reactivación de la economía en el complicado 2009 que se viene, como para tener un fondo de más de 400 millones disponibles para asistir a los sectores más necesitados.
Pero también, amén de otorgarle una herramienta electoral fuerte, le da a Jaque la posibilidad de tener en un puño a los intendentes ávidos de programas de estas características.
El programa de viviendas tiene esos puntos importantes:
- Cada casa a construir tiene un precio oficial de $84.000, que se ampliará a $105.000 por las necesidades de montar toda la infraestructura necesaria. La diferencia, será pagada por la provincia a través del IPV.
- Está previsto que el plazo de pago para cada propietario de las viviendas sea de 240 meses (20 años) y hasta que no se sepa el valor definitivo no se sabrá de cuánto será la cuota a pagar.
- Cada vivienda tendrá un living de 4,15 por 4,60 metros que además será cocina, dos habitaciones de 3,60 por 3 metros y un baño de 2,70 por 1,30 metros. Se entregará con la carpintería, pisos y azulejos en el baño y en el sector de la cocina. Pero sin cerámicos en las otras dependencias.
- Las terminaciones podrían concretarse, si el IPV consigue un buen precio de las empresas a las que se llamará a licitación para concretar ese trabajo.
- El plan de construcción es de tres años para la totalidad de las 5.500 viviendas proyectadas y está pensado que cada municipio presente un plan para hacer no más de 50 casas por barrio y es difícil que este año se llegue a empezar a construir alguna.
- Poco menos de la mitad de las casas que se harán, ya están licitadas. Son las 1.807 del Plan Federal 2 que serán reconvertidas y a las que también les llegará el ajuste. De 60 metros cuadrados, pasarán a tener 53. Esa parece ser la dimensión preferida de los arquitectos de Jaque.
La llegada del plan se conoció semanas atrás, cuando MDZ publicó la serie de acuerdos alcanzados en Capital Federal para acercar fondos frescos a esta provincia, donde el oficialismo tiene fuerte necesidades políticas. Después, se supo que en una reunión entre el Subsecretario de Obras Públicas de la Nación, José Francisco López, y su par local Mariano Pombo, se acordó que a Mendoza le tocarían 5.000 de estas viviendas, que después serían 5.500.





