Cómo es la nueva Comisaría que van a construir en Guaymallén y qué empresas se postularon
El edificio actual presenta un marcado deterioro y quedó obsoleto para los requisitos de la dependencia. Buscan demolerlo y construir ahí mismo. Los detalles.
El edificio actual de la Comisaría 31 está deteriorado.
Gobierno de MendozaEl Ministerio de Seguridad de la provincia en conjunto con la Subsecretaria de Infraestructura y Desarrollo Territorial están proyectando la construcción de un nuevo edificio para la actual Comisaría 31°, que está ubicada en el departamento de Guaymallén.
El edificio actual tiene muchos años de antigüedad y presenta un marcado deterioro. Desde el exterior ya es visible la presencia de humedad en las paredes. Además, al ser un edificio antiguo, ya no cuenta con las funcionalidades que requiere la administración de una dependencia policial en este siglo.
Te puede interesar
Este domingo será la primera elección del año en Mendoza: de qué se trata
De hecho, no es una de las dependencias judiciales del departamento por el momento, como sí lo son la 25° de San José y la 45° de Dorrego. Es decir, no alberga detenidos.
Es por este motivo que las autoridades de ambas carteras proyectaron la demolición completa del edificio actual y la construcción en ese mismo lugar -en Pedro Molina de Guaymallén-, de uno nuevo con dos plantas y celdas.
Licitación y las empresas oferentes
El llamado a licitación se publicó en junio pasado con un presupuesto de $915.299.924,26. Este miércoles, las autoridades del Ministerio de Gobierno e Infraestructura realizaron el acto de apertura de sobres en Casa de Gobierno.
Son dos las empresas que aspiran a demoler la Comisaría y construir una nueva. Se trata de Capsa SRL y Construcciones Artigas SA. Se evaluarán ambas ofertas económicas para avanzar con el proceso licitatorio.
Cómo será el edificio
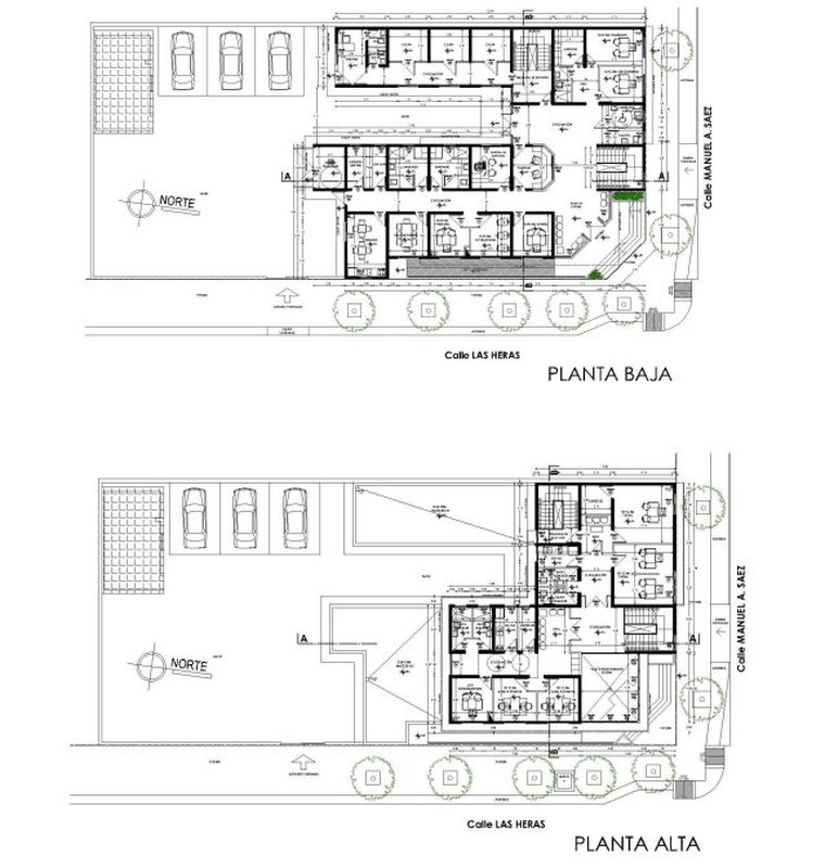
El edificio que se encuentra actualmente en la intersección de calles Las Heras y Manuel A. Sáenz será distribuido en dos plantas, en un terreno de 720 metros cuadrados.
Contará con una sala de recepción con ingreso desde la esquina, luego una guardia, oficinas administrativas, sanitarios, vestuarios y una cocina comedor para la utilización del personal policial.
También a nivel infraestructura de seguridad contará con sector exclusivo para celdas destinadas a los detenidos, un depósito de armas y un archivo de expedientes. También un área específica para la Academia.
La obra se construirá con materiales tradicionales como cemento, pisos de porcelanato y ventanas de aluminio. Una cuestión clave es que comenzará sin que se interrumpan las actividades administrativas de la actual comisaría, hasta la demolición.
Desde el Ministerio de Seguridad señalaron que el proyecto de la Comisaría 31° es solo uno de los 41 que tienen desarrollados y que están vinculados a la infraestructura de las comisarías. Solo 14 de ellos fueron evaluados como prioritarios en el presupuesto y el del espacio de Guaymallén es el más avanzado.
Para la construcción de este proyecto de comisaría “se buscó mucho más que un edificio nuevo, ya que se requiere de estructuras funcionales a un modelo de seguridad moderno, con espacios adecuados para la atención a la ciudadanía, conectividad con el 911, zonas seguras para detenidos y evidencia”.
Advirtieron que lo que se intenta evitar “es que se conviertan simplemente en lugares para alojar policías”, ya que justamente lo que buscan es “tener más policías en la calle, que es donde verdaderamente se fortalece la prevención”.


