Giménez Riili lanza un barrio para departamentos
Se trata de un conjunto residencial para 100 departamentos ubicado en una superficie total de 30.000 m2s frente a Las Cortaderas Country, el barrio privado que desarrolla en Guaymallén. La inversión es de $3 millones.
Giménez Riili Desarrollos Inmobiliarios está terminando de dar forma a un innovador emprendimiento: un complejo para la construcción de departamentos.
Te puede interesar
Motos: hubo un récord absoluto de patentamientos durante marzo
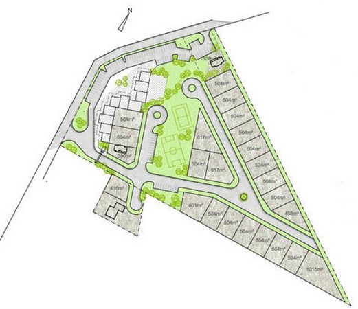
El mismo, todavía sin nombre definido, estará en un terreno de 30.000 metros cuadrados ubicado frente a Las Cortaderas Country (Pueblo Nuevo, Guaymallén) y también tendrá financiación personalizada.
El proyecto incluye el desarrollo de terrenos de 500 metros cuadrados que se pondrán a la venta para que los distintos inversores privados construyan allí hasta cinco departamentos por lote (con un estilo arquitectónico armónico y consistente) y contempla un SUM (salón de usos múltiples), una plaza central, todos los sistemas de seguridad para una vida cómoda y tranquila y espacio para locales comerciales complementarios con el Centro Comercial de Las Cortaderas Country.
![]() |
Además, 1.500 metros cuadrados del terreno serán donados por la empresa al Rotary Club, en concordancia con los objetivos de Giménez Riili Desarrollos Inmobiliarios de ocuparse por el cuidado del entorno y el bienestar de la comunidad de Pueblo Nuevo.
La inversión estimada para el proyecto supera los 3 millones de pesos. La idea del negocio es abrir el proyecto a inversores privados que deseen construir complejos de departamentos para venderlos como obras terminadas o bien ponerlos en alquiler.
Las Cortaderas Country
El barrio privado está en la zona de Pueblo Nuevo (Kilómetro 11) de Guaymallén, convenientemente ubicado a 5 minutos del Mendoza Plaza Shopping y a 8 minutos del centro de la ciudad de Mendoza y con accesos rápidos por el Acceso Este sobre la calle Arturo González. Las Cortaderas se encuentra en etapa de venta y tiene espacio para 200 viviendas con una urbanización que incluye todos los servicios subterráneos, red asfáltica, portal de ingreso controlado, seguridad privada, todos los perímetros cerrados; canchas de tenis, fútbol y beach volley; estilo arquitectónico de vanguardia y reglamento de construcción y convivencia.
Giménez Riili Desarrollos Inmobiliarios ha estado emprendiendo en la zona durante años. Sus anteriores proyectos: Los Solares, Senderos de Campo, Las Lomas, Haciendas de la Cruz y Las Cortaderas Country. Además, Giménez Riili Desarrollos Inmobiliarios es parte del grupo de The Vines of Mendoza y Bodega Giménez Riili. En Internet: http://www.grdesarrollos.com/index.php


